- リフォーム内容
- 1階全面改装
- 工事期間
- 約3か月
- お住まい
- 東近江市
ご両親がお住まいだったお家を息子様家族が住み継がれリノベーションされました。
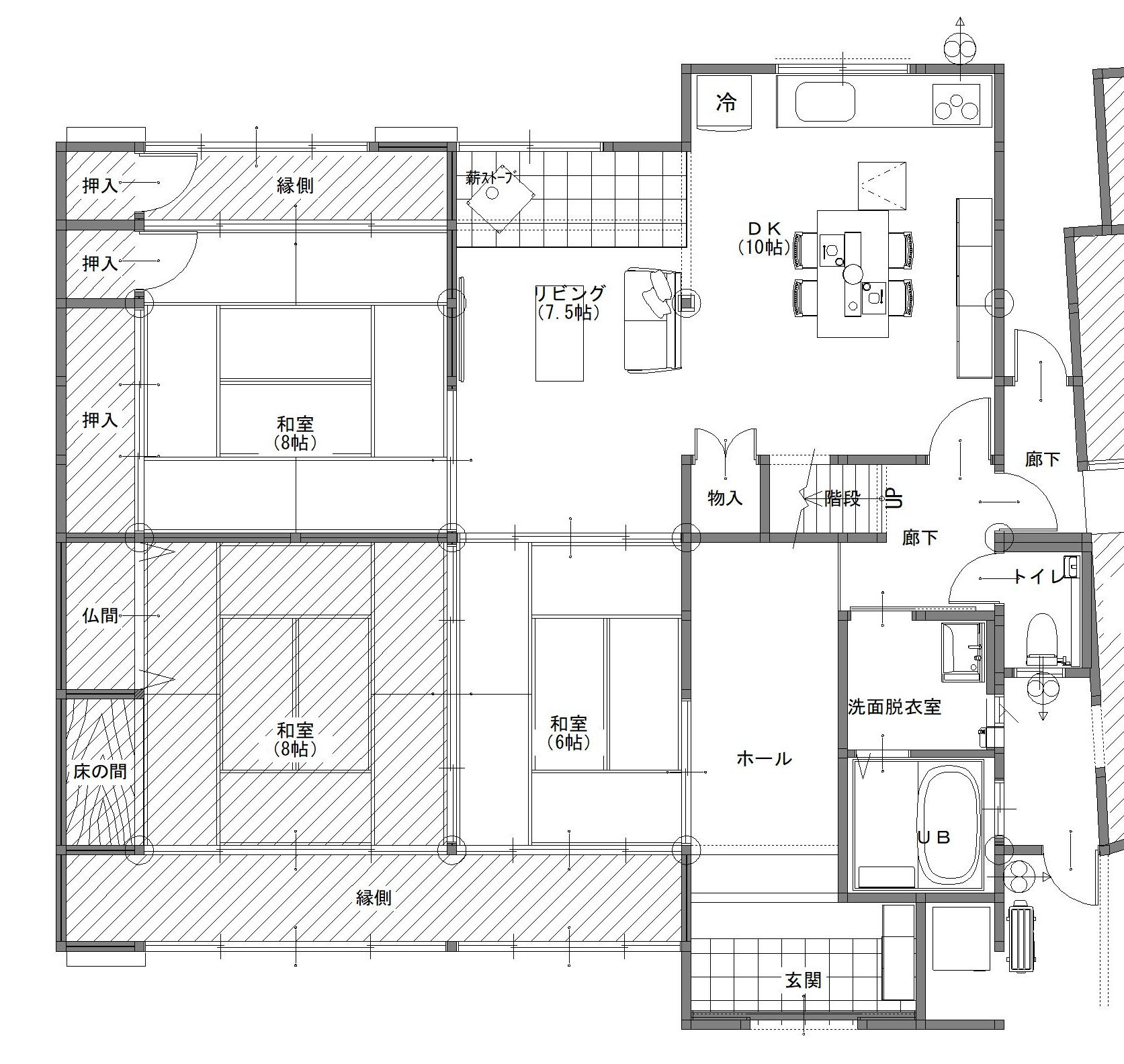
昔ながらの四つ住まいの間取りでダイニングキッチンと和室(居間)に別れた間取りでした。
風通しのよい造りですが冬は寒いのが難点……。
そこで、引っ越しを機に断熱性能を高めた家づくりを計画しました。
水廻りの動線を改善し、断熱性能を高めるために1階、2階の窓の取替と内窓を設置しました。
そして何よりご夫婦のご要望「薪ストーブのある暮らし」
ご両親から受け継いだ家を、息子様ご家族の新たな生活の場として、快適さと温かさを感じられる場所に生まれ変わりました。これからも薪ストーブの温もりと共に、家族の絆が深まる素敵な日々が続くことを願っています。
「LDKは隣接している和室を一部屋にしてLDKとして広く使いたい」というご要望。
建具と壁で区切られた部屋を開放感のある一部屋にしました。
薪ストーブ部分はタイルを広めに貼り薪や小物が置けるスペースに♩
薪ストーブの重量に耐えれれるように床は補強しています。
通し柱は猫ちゃんが引っ掻いても大丈夫なよう杉板を張りました。
広々としたLDKは家族が集まったときにゆったりと過ごせる空間になりました。
キッチン:LIXIL ノクト
カップボード:LIXIL ノクト
少し狭めの在来タイル浴室を1坪サイズに拡張しリデアを採用。
ゆったりと広い浴室が叶い、洗面脱衣室も衣類収納が置ける余裕のあるスペースへ。
トイレも移設し水廻りが集中することで動線が短くなりました。
洗面:LIXIL ピアラ W750
玄関横にあったトイレは家族みんなが使いやすい場所へ移動しました。
トイレ:LIXIL サティスS
夢だった薪ストーブ♩
薪ストーブの耐荷重を考慮したタイルは陶墨染Ⅱを採用。和モダンのイメージに合うタイル色。
内窓で断熱性能をしっかり高められたので、今年の冬はとても暖かく過ごしていただけたそうです。




担当者から
Y.K
S.K